
弧形振動篩
瀏覽次數:15303次
所屬分類:振動篩設備
發布日期:2022-07-18 14:12:36
弧形振動篩分為固定式和振動式兩種,從安裝方式上可分為吊掛式和座式安裝,篩體可翻轉,延長篩板使用壽命,弧形振動篩設備傾斜角度可根據現場情況適當調整,振動式弧形篩的振動電機激振力可以在一定范圍內調整,以滿足弧形振動篩脫水效果。
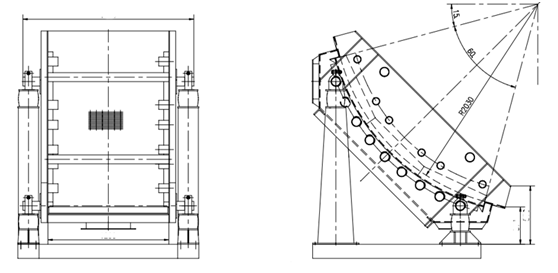
一般情況下,弧形振動篩安裝在動力篩之前,用來減少動力篩的面積,這種振動篩具有結構簡單、脫水效果好、物料不易堵塞、占地面積小和便于維修等特點;這種篩機的構成有包角45度、60度和曲率半徑2030毫米的篩箱;弧形的篩框和篩面使用的是樞軸專向的結構,可以做到180度旋轉,讓篩面的使用壽命更長。
弧形振動篩放置角度
一、弧形振動篩優勢
1、這種振動篩的結構比較簡單,不需要動力也可以進行篩分工作,與條縫篩分機相比,處理能力和篩分效率都要稍高一些;
2、弧形振動篩能處理的量比較大,效率比較高,可以專門對物料進行脫水和脫介的處理工作;
3、這種振動篩的結構是全封閉的、不會泄露、可以改善工作的環境;
4、弧形振動篩的篩箱和篩網根據用戶要求可采用不銹鋼材質制作,以及篩面角度成弧形透網,易滲漏、耐磨、耐腐蝕;
5、可以對篩板和進料口進行自動清洗。
二、弧形振動篩的工作原理
弧形振動篩是一種用于顆粒篩分和固液分離的裝置,其工作原理基于物料在弧形篩面上的分布和振動作用。根據篩條入料側和尖銳的棱邊對煤泥水的切割的作用,把煤泥水分離出去,而篩面的弧形設計有助于減少粘附和堵塞,使物料自由通過篩孔。在振動的作用下,物料根據顆粒大小逐漸通過篩孔,形成多個分級產物。弧形振動篩的入料端和出料端位置可以根據入料箱、篩箱和篩機座軸的翻轉來進行對調,操作起來非常方便靈活,可以均勻的磨損,讓弧形振動篩的使用壽命更長。
弧形振動篩又分振動式振動篩和固定式振動篩,根據物料的水分和使用的場合不同來選擇。因弧形振動篩特殊的篩面形狀和振動特性,適用于處理粘性、濕潤以及需要分級篩分的物料,提高了篩分效率和產物質量。
三、弧形振動篩的使用范圍
1、粘性物料篩分
弧形振動篩適用于處理具有粘性的物料,如濕煤、濕礦石、陶瓷粉末等。其弧形篩面能夠減少物料在篩面上的黏附,防止顆粒堵塞篩孔,從而提高了篩分效率。2、濕性物料篩分
對于濕潤或高濕度的物料,弧形振動篩可以更好地分散和均勻分布物料,有助于在篩分過程中降低黏結和黏附,從而提高篩分效果。3、細顆粒物料篩分
弧形振動篩能夠進行快速的細顆粒物料分級篩分,將物料按照不同粒度進行分離,廣泛用于礦石、砂石、建筑材料等領域。4、多級篩分
弧形振動篩通常具有多層篩面結構,可以在不同層次進行多級篩分,用于更精細的顆粒分級,例如粉末冶金領域。
18537996660



豫公網安備 41032302000188號
網站首頁
電話咨詢
返回頂部